Who doesn't love a good mystery? We're giving you the opportunity to stretch and flex those rigging knowledge muscles with this fun series from ITI Co-founder, Mike Parnell. Here you'll find questions on web slings, corner loading, jacking, and floor loading.
Gather your crew and see who has got what it takes to answer these questions on their own, or with the help of few reference cards: Journeyman Rigger's Reference Card, Master Rigger's Reference Card, and the Rigging Gear Inspection Reference Card
Keep it fun and consider incorporating a friendly wager perhaps..? We did and an ITI Woodland team member earned a Popeye's Chicken Sandwich for getting 100% on the quiz! #lovethatchicken 🐔
If you find this quiz to be a bit trickier than you'd like, come train with us and brush up your skills! We've got upcoming training center courses as well as online course options via the ITI Learning Hub. Let us help you achieve Master Rigger status!
1. Web Sling Removal Criteria
Match the description below which best identifies the removal criteria to the right:
| 1. ___ When sewn threads which form the splice are damaged. | A. cuts and tears |
| 2. ___ The webbing is severely bleached and has a rough surface. | B. crushing |
| 3. ___ A depression in the webbing’s cross-section. | C. ultraviolet ray degradation |
| 4. ___ A separation on the web surface. | D. missing or illegible identification |
| 5. ___ Unknown rated capacity. | E. broken or worn stitching |
| 6. ___ Discolored webbing which is disintegrating and has a strange odor. | F. damaged end fittings |
| 7. ___ A hole through the webbing body. | G. abrasion |
| 8. ___ A permanent distortion in the webbing, since it is wound around itself. | H. chemical damage |
| 9. ___ A fuzzy surface of disturbed web yarn. | I. puncture |
| 10. ___ Spread or twisted hook, d-ring or attached master link. | J. knot |
2. Corner Loading
Hint: Refer to the Master Rigger's Reference Card
![]() |
Estimate the corner loading for NW, NE,
|
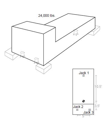
3. Jack-to-Load PSI
Hint: Refer to the Journeyman Rigger's Reference Card & the Master Rigger's Reference Card
|
Estimate the loading to each jack (1,2,3) Each jack head is 3” x 3” square. Net load to: |
![]() |
4. Floor Loading
Hint: Refer to the Journeyman Rigger's Reference Card & the Master Rigger's Reference Card
![]() |
An offshore marine construction No jack should impose more
A. 10 B. 15 C. 20
|
Answer Key (no cheating!)
| Question 1 | 1. E 2. C 3. B 4. A 5. D 6. H 7. I 8. J 9. G 10. F |
|
| Question 2 | NW = .45 x .60 x 11,400 = 3,078 lbs. NE = .55 x .60 x 11,400 = 3,762 lbs. |
SW = .45 x .40 x 11,400 = 2,052 lbs. SE = .55 x .40 x 11,400 = 2,508 lbs. |
| Question 3 |
Jack 1 net load = Jack 2 net load = Jack 3 net load = |
PSI @ Jack 1 head to load =
|
| Question 4 |
C. 20’ This produces loads to the |
|




COMMENTS